建物 物件No. 155

八戸市白銀町栗沢道|リフォーム済み・即入居可の3LDK戸建

3LDK 土地46坪 建物26坪 パノラマ
所在地
青森県八戸市大字白銀町字栗沢道
交通
JR八戸線 白銀駅 約2.1km/市営・南部 岬台団地西口バス停 約350m
学区
白鷗小学校 / 白銀中学校
この物件のポイント
  • リフォーム済みで、すぐに新生活を始めやすい住まい
  • オール電化採用で、ガス・灯油を使わない暮らし
  • LDK+全居室エアコン完備で、入居後の負担も抑えやすい
  • 2016年築の3LDK、駐車2台可・即時引渡し対応
販売価格
2,080万円 (税込)

写真

外観写真
建物外観
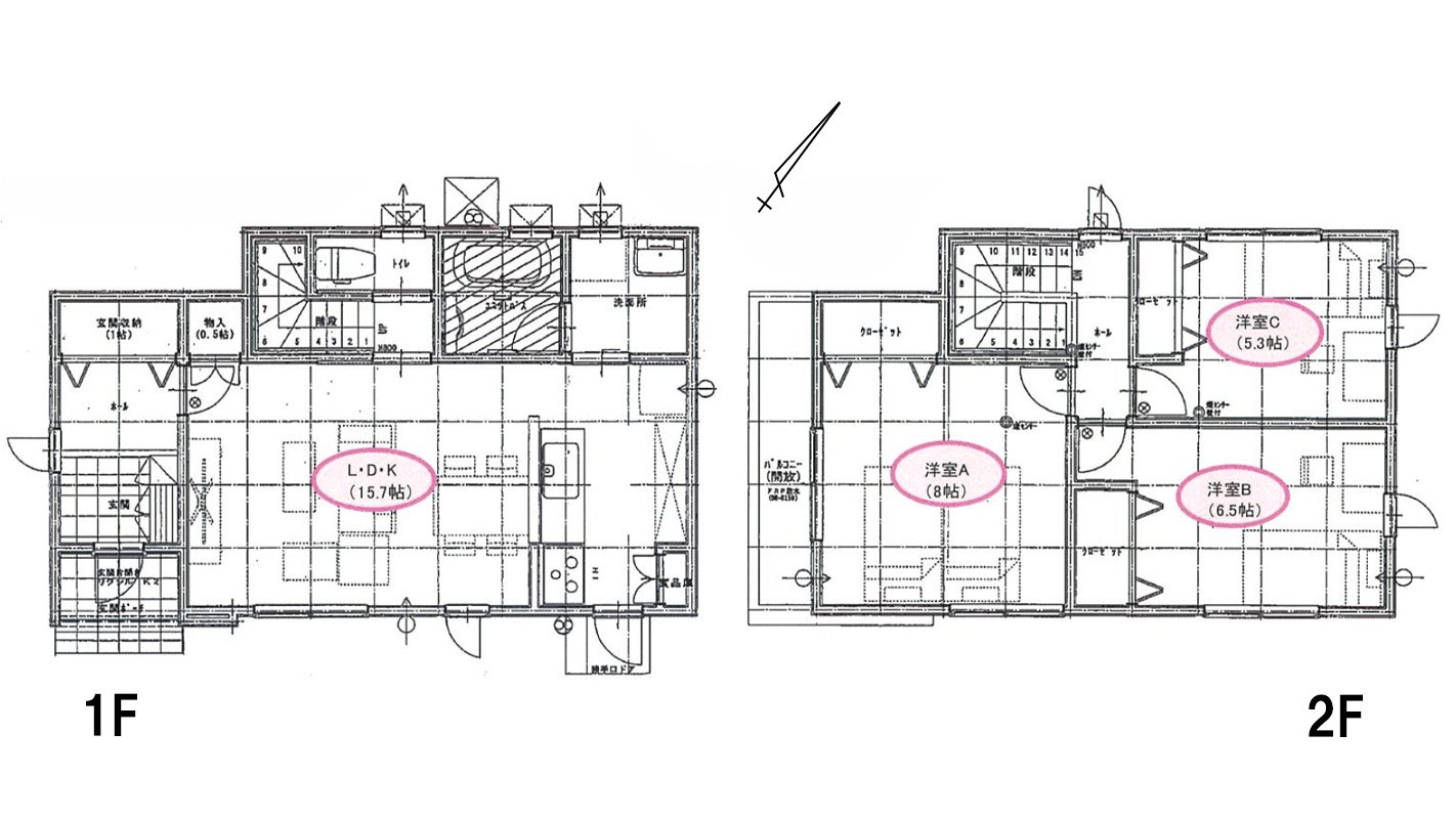
外観写真 玄関 玄関ホール LDK 15.7帖 洗面・ランドリールーム 浴室 トイレ 2階 洋室8帖 2階 洋室6.5帖 2階 洋室5.3帖 駐車スペース

間取図・図面

間取図

動画・パノラマ

物件紹介

●リフォーム済みで即入居可能
~リフォーム内容~
・クロス貼替(一部)
・給湯器交換
・ハウスクリーニング

●オール電化住宅
ガス・灯油を使わず安全で経済的なオール電化住宅。
LDK+各部屋エアコン完備

物件概要

建物面積 88.60㎡(26.80坪)
築年月日 2016年8月
間取 3LDK
構造 木造
階数 2階建
駐車場 2台可
現況 空家
土地面積 153.86㎡(46.54坪)
土地権利 所有権
地目 宅地
都市計画 市街化区域
用途地域 第一種低層住居専用地域
建ぺい率 50%
容積率 80%
接道 南西側 約6m幅員 間口約10m
私道負担
その他制限 建築基準法第22条区域
引渡時期 即時
取引態様 仲介
設備 ・上水道 ・浄化槽 ・オール電化

地図

周辺施設
● 白鷗小学校 約1.2km
● 白銀中学校 約350m
● ユニバース白銀店 約1.4km
● マエダストア大久保店 約1.4km
● 薬王堂八戸白銀店 約1.1km
LOAN SIMULATION

住宅ローンの返済額を試算できます

借入額・金利・返済年数・ボーナス払いを調整して、毎月の返済額の目安を確認できます。

SUPPORT

住宅ローンと家計の不安まで、
一緒に整理。

スカイアース不動産では、宅建士×ファイナンシャルプランナーとして、 住宅ローンの組み方や購入後の家計・教育費・老後資金とのバランスまで含めたご相談をお受けしています。

「この物件を買っても大丈夫?」という不安を、具体的な数字とシミュレーションで確認できます。

住宅購入FP相談
▶ FP相談(ライフプラン・購入診断)の詳細はこちら

住まい探し・住宅購入のご相談

物件のこと、住宅ローンのこと、購入の進め方など、気になることがあればお気軽にご相談ください。
まだ検討段階の方や、「何から始めればいいか分からない」という方も大丈夫です。
まずは気軽に聞きたい方へ
フォームに個人情報を入力する前に、少しだけ相談したい方はLINEでも受け付けています。
聞きたいことがまだまとまっていなくても大丈夫です。
ご希望の連絡方法 任意
ご相談内容(当てはまるものにチェック)
ご入力内容は、お問い合わせ対応、資料送付、ご希望条件に応じたご連絡のために利用いたします。
紙の資料をご希望の方には、郵送対応のため住所を利用いたします。
詳しくは 個人情報保護方針 をご確認ください。
送信後、自動返信メールをお送りします。@skyearth-est.com からのメールを受信できるようご確認ください。届かない場合は迷惑メールフォルダもあわせてご確認ください。
情報更新日:2026年3月18日 / 次回更新予定日:2026年4月1日